Villa singola in vendita

Badia Calavena, Contrada antonelli - Antonelli
€ 269.000
5 locali 5 locali
200 Mq 200 Mq
1 bagno 1 bagno

Villa singola in vendita

Badia Calavena, Contrada antonelli - Antonelli

Descrizione annuncio

BADIA CALAVENA - VIA ANTONELLI

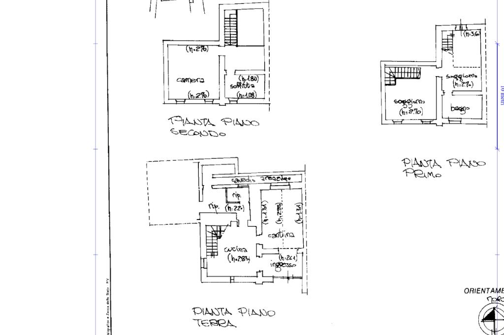
Proponiamo in vendita a Badia Calavena, in Via Antonelli, un' ampia villa di 200 mq, sviluppata su tre livelli, completa di giardino privato e autorimessa.

L’immobile si apre al piano terra con cucina, sala da pranzo e ripostiglio adibito a bagno. Il primo piano ospita una luminosa zona giorno composta spazioso bagno finestrato e da due stanze adibite a soggiorno, una delle quali permette di accedere al giardino.

Al secondo ed ultimo piano si trova la zona notte, con una camera da letto e una soffitta adattata ad ulteriore camera.

La proprietà è valorizzata da un generoso giardino con zona barbecue, ideale per trascorrere momenti di relax all’aperto.

Completa la soluzione il garage, elemento sempre più richiesto e di grande praticità.

Devi fare un mutuo? KIRON PARTNERS, comunica che presso la nostra agenzia il cliente può trovare operatori con esperienza pluriennale nel settore bancario/creditizio e assicurativo che ci permettono di soddisfare e trovare soluzioni di reperimento del finanziamento per l'acquisto della casa. Il colloquio è gratuito.

Mostra tutto

Nelle vicinanze

Trasporto pubblico Trasporto pubblico
Trasporto pubblico
1,1 Km
Scuole Scuole
Scuola dell'Infanzia e Nido Integrato
1,8 Km
Farmacia Farmacia
Farmacia Allegri - Infanti
1,6 Km
Negozi Negozi
Sartori
1,2 Km
Negozi
1,3 Km
Alimentari Grisi Paola
1,6 Km
Supermarket San Valentino
1,8 Km
Bar Bar
Bar
1,6 Km
Pedrotti
1,7 Km
Ristoranti Ristoranti
Bettola
1,5 Km
Don Chisciotte
1,7 Km
L'Abazia
1,7 Km
Bellavista
1,7 Km
Solivo
1,8 Km
Mostra tutto

Caratteristiche

Rif.:
61197759
Piano:
2 di 2 (Piano medio)
Box:
1
Camere da letto:
2
Arredamento:
Parziale
Condizionamento:
Assente
Mostra tutto
Prezzo Prezzo
€ 269.000
Rata mutuo Rata mutuo
€ 1.268 / mese
Spese annue Spese annue
€ 0
Proponi il tuo prezzoProponi il tuo prezzo

Classe Energetica

G
G
G
G
G
G
G
G
G
EP globale non rinnovabile:
1.00 kW h/m² anno
EP globale rinnovabile:
1.00 kW h/m² anno
EP invernale del fabbricato:
EP estiva del fabbricato:
Anno di costruzione:
1970
Riscaldamento:
Autonomo
Tipo impianto:
A radiatori
Tipo alimentazione:
GPL

Ti interessa visionare l'immobile?

Fissa un appuntamento  Fissa un appuntamento

Richiedi informazioni

Clicca su Leggi per aprire l'informativa
* Questi campi sono obbligatori

Calcola il tuo mutuo

Semplice e senza impegno
Anticipo

( % )
Mutuo

( % )

pochi semplici passi

inserisci i tuoi dati
Questionario completato
Grazie per aver richiesto un appuntamento senza impegno con un nostro Consulente del Credito e Assicurativo.

Hai inserito correttamente tutti i dati necessari e a breve riceverai una e-mail con un link da convalidare per inviare i tuoi dati.
Affiliato
Lessinia Srl
Via Lessini, 52 37020 Cerro Veronese (VR)

Il nostro staff


  • Christian Bragantini
    Affiliato

  • Paolo Morana Dal Bianco
    Affiliato
Via Lessini, 52 37020 Cerro Veronese (VR)
Zona: Cerro Veronese-Roverè Veronese-Velo Veronese-Badia Calavena-Selva Di Progno
Mostra su mappa
Orari: Lunedì - Venerdì 9.00-12.30 15.00-19.30 Sabato 9.00-12.30
Affiliato
Lessinia Srl
Via Lessini, 52 37020 Cerro Veronese (VR)

2026 Tecnocasa Franchising S.p.A. - P. IVA 08365160152 - Via Monte Bianco 60/A 20089 Rozzano (MI). Ogni agenzia ha un proprio titolare ed è autonoma. Privacy policy | Policy utilizzo | Cookie policy