Rustico in vendita

Velo Veronese, Contrada Riva
€ 250.000
15 locali 15 locali
650 Mq 650 Mq
2 bagni 2 bagni

Rustico in vendita

Velo Veronese, Contrada Riva

Descrizione annuncio

VELO VERONESE - RIVA

In una tipica contrada nel comune di Velo Veronese, proponiamo in vendita un affascinante compendio immobiliare formato da 7 rustici e comprensivo di vendita dell'azienda agricola.

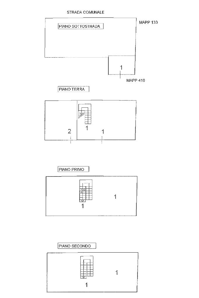
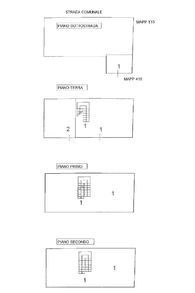
All'interno del compendio troviamo una casa di corte, di circa 170 mq, la quale necessita di lavori di ristrutturazione; si sviluppa su tre livelli offrendo ampi spazi abitativi, tra cui quattro camere da letto e due bagni.

Gli altri rustici sono completamente da ristrutturare, permettendo di dare libero sfogo alla creatività e al gusto personale.

Questa proprietà rappresenta un'opportunità unica per chi cerca un progetto di ristrutturazione, dove creare sia una soluzione abitativa ma anche lavorativa, in una location tranquilla e immersa nella natura, con il fascino autentico delle costruzioni storiche.

Devi richiedere un mutuo o prestito? KIRON PARTNERS, comunica che presso la nostra agenzia il cliente può trovare operatori con esperienza pluriennale nel settore bancario/creditizio e assicurativo che ci permettono di soddisfare e trovare soluzioni di reperimento del finanziamento per l'acquisto della tua casa. Il colloquio è gratuito.

Mostra tutto

Nelle vicinanze

Trasporto pubblico Trasporto pubblico
Trasporto pubblico
2,6 Km
Scuole Scuole
Scuole
2,0 Km
Scuola dell'infanzia e primaria
2,0 Km
Farmacia Farmacia
Farmacia Turri
2,2 Km
Supermercati Supermercati
Supermercati
2,2 Km
Negozi Negozi
Ermelina
2,2 Km
Bar Bar
Bar
2,2 Km
Ristoranti Ristoranti
Agriturismo Camposilvano
2,0 Km
Corte 300
2,1 Km
Osteria dei Pastori
2,2 Km
Trattoria Alberti
2,2 Km
I 13 Comuni
2,2 Km
Mostra tutto

Caratteristiche

Rif.:
61116030
Piano:
3 di 3 (Piano su più livelli)
Camere da letto:
4
Arredamento:
Assente
Condizionamento:
Assente
Ascensore:
No
Mostra tutto
Prezzo Prezzo
€ 250.000
Rata mutuo Rata mutuo
€ 1.178 / mese
Spese annue Spese annue
€ 0
Proponi il tuo prezzoProponi il tuo prezzo

Altre caratteristiche

Descrizione dei locali
Bagno Con Finestra

Classe Energetica

G
G
G
G
G
G
G
G
G
EP globale non rinnovabile:
1.00 kW h/m² anno
EP globale rinnovabile:
1.00 kW h/m² anno
EP invernale del fabbricato:
EP estiva del fabbricato:
Anno di costruzione:
1900
Riscaldamento:
Assente

Ti interessa visionare l'immobile?

Fissa un appuntamento  Fissa un appuntamento

Richiedi informazioni

Clicca su Leggi per aprire l'informativa
* Questi campi sono obbligatori

Calcola il tuo mutuo

Semplice e senza impegno
Anticipo

( % )
Mutuo

( % )

pochi semplici passi

inserisci i tuoi dati
Questionario completato
Grazie per aver richiesto un appuntamento senza impegno con un nostro Consulente del Credito e Assicurativo.

Hai inserito correttamente tutti i dati necessari e a breve riceverai una e-mail con un link da convalidare per inviare i tuoi dati.
Affiliato
Lessinia Snc
Via Lessini, 52 37020 Cerro Veronese (VR)

Il nostro staff


  • Christian Bragantini
    Affiliato

  • Paolo Morana Dal Bianco
    Affiliato
Via Lessini, 52 37020 Cerro Veronese (VR)
Zona: Cerro Veronese-Roverè Veronese-Velo Veronese-Badia Calavena-Selva Di Progno
Mostra su mappa
Orari: Lunedì - Venerdì 9.00-12.30 15.00-19.30 Sabato 9.00-12.30
Affiliato
Lessinia Snc
Via Lessini, 52 37020 Cerro Veronese (VR)

2026 Tecnocasa Franchising S.p.A. - P. IVA 08365160152 - Via Monte Bianco 60/A 20089 Rozzano (MI). Ogni agenzia ha un proprio titolare ed è autonoma. Privacy policy | Policy utilizzo | Cookie policy